アクセス
神戸市産業振興センター
神戸市シルバー人材センターアクセス
神戸市産業振興センターへのアクセス
建物名称:神戸市産業振興センター
住所:〒650-0044
神戸市中央区東川崎町1丁目8番4号 (神戸ハーバーランド内)
電車をご利用の方
- JR「神戸」駅より徒歩約5分
- 阪神電鉄「西元町」駅より徒歩約6分
- 神戸高速鉄道「高速神戸」駅より徒歩約8分
- 市営地下鉄海岸線「ハーバーランド」駅より徒歩約5分
地上から……
<JR「神戸」駅からの経路>
JR神戸駅の中央改札を出て右。ハウジングデザインセンター神戸(HDC)の前を通り歩道橋へ。歩道橋で国道2号線を渡りプロメナ神戸の入口手前を左折。階段を下りて国道2号線沿いの通りへ。国道に向き合い右手方向へ約100m進む。
地下から……

地下からの順路を見る
① JR神戸駅からお越しの方は、中央口改札を出て、右手「KOBE HARBORLAND」方面へエスカレーターを下ります。エレベーターは、エスカレーター向かって右手にございます。
※ 神戸高速鉄道「高速神戸駅」、市営地下鉄海岸線「ハーバーランド駅」をご利用の方は下記②よりご確認ください。


② 地下「DUOKOBE(デュオこうべ)」へ降りましたら、進行方向左側「Harbor Street」方面へ進みます。


③「Harbor Street」を進み、つき当たり「WAKOHRE VISION」を左折します。

④ そのまま「Promena」方面へ直進します。

⑤「28出入口 産業振興センター方面」からエレベーターまたは、階段にて地上へ上がります。


⑥ 地上へ出ましたら、道路を正面に見て右折し、直進します。

⑦ 神戸市産業振興センターへ到着です。

新幹線をご利用の方
JR西日本山陽新幹線「新神戸」駅下車 (乗換) 神戸市営地下鉄「新神戸」駅→「三宮」駅→JR神戸線「三ノ宮」駅→「神戸」駅 下車
飛行機をご利用の方
- 神戸空港:2Fロビーからポートライナー「神戸空港」駅→「三宮」下車、(乗換) JR「三ノ宮」駅→「神戸」駅下車
- 伊丹空港:北ターミナルビル前3番のりばからバス→「三宮」下車(乗換)→JR「三ノ宮」駅→「神戸」駅下車
- 関西国際空港:第1ターミナルビル1階6番のりばまたは第2ターミナルビル4番のりばからバス→三宮下車(乗換) JR「三ノ宮」駅→「神戸」駅下車
車をご利用の方
大阪方面から…阪神高速道路「京橋ランプ」から国道2号線西方面へ。弁天町交差点を左折し最初の信号を右へ。
姫路方面から…阪神高速道路「柳原ランプ」から国道2号線東方面へ。神戸駅南交差点を右折し、最初のT字路を左へ。
※ 当センターには駐車場はございません。近隣の駐車場をご利用ください。
お問い合わせ
総務部 総務課
TEL:078-360-3199
フロア紹介
各階の詳細を見る
1F

- 神戸市産業振興センター受付窓口
- こうべ産業・就労支援財団
神戸市勤労者福祉共済制度(ハッピーパック) - ひょうご産業活性化センター 兵庫県よろず支援拠点
- 神戸市 市長認定・融資相談窓口
- 防災センター
館内のホール・会議室等ご利用申込受付、金融・経営の各種相談窓口を設置しています。

2F

- ひょうご産業活性化センター
創業推進部・経営推進部・ひょうご専門人材相談センター

3F

- ハーバーホール
- ホワイエ

5F

- インキュベーション神戸ハーバーオフィス(スモールオフィス・創業準備オフィス)
- 神戸市商工団体総連合会
- 神戸市商店街連合会
- 神戸市機械金属工業会
- 日本技術士会 兵庫県支部
- 兵庫県技術士会
- 神戸市小売市場連合会
- こうべ環境フォーラム事務局

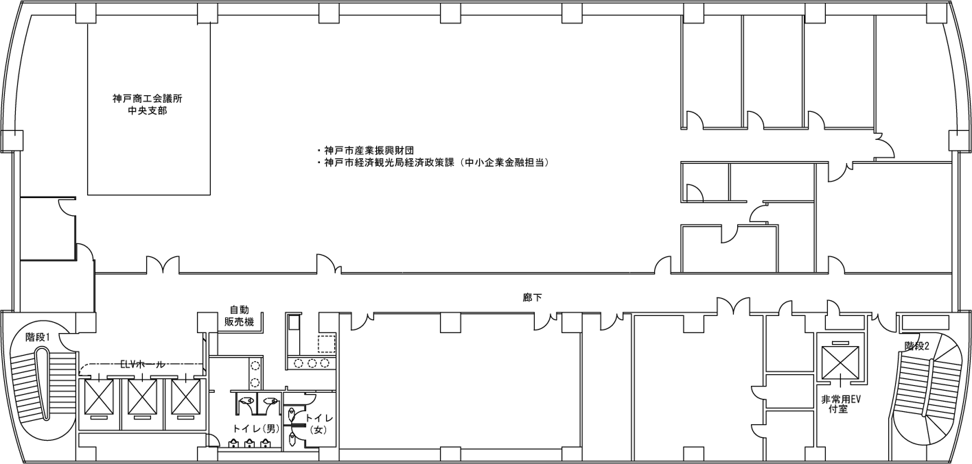
6F

- 神戸商工会議所(中央支部)
- こうべ産業・就労支援財団
神戸市シルバー人材センター - 神戸市経済観光局経済政策課(中小企業金融担当)
各種中小企業支援施策の情報収集、経営相談など、お気軽にお立ち寄りください。

7F

- インキュベーション神戸ハーバーオフィス(企業育成室)
- ひょうご産業活性化センター
企画経営室・設備投資支援室
<企業育成室>
IT関連、製造業等の創業期企業が入居し、自社製品・自社技術の研究開発やマーケティングに取り組んでいます。

8F

- 貸し会議室(801~804)
- インキュベーション神戸ハーバーオフィス(スモールオフィス)
- ソフトウェア研修室(パソコン教室)
- 兵庫県中小企業診断士協会
- 企業サポートオフィス(産業人OBネット、神戸みなと特許事務所)

9F

- 貸し会議室(901~906)
- サービスステーション(会議室当日受付・お問い合わせ)
24名から108名までの会議・講演会など、様々な用途に合わせてお選びいただけます。

10F

- レセプションルーム(1001・1002)
- 神戸食堂 はぁとす。
<レセプションルーム>
最大110名のパーティが開催できます。
交流会・会議など幅広くお使いいただけます。
<神戸食堂 はぁとす。>
神戸の厳選食材にこだわり、まごころのこもった料理をご提供します。
パーティー料理、会議のお弁当・コーヒーなどもご用意します。
TEL:078-360-4602
神戸食堂はぁとす。

神戸市シルバー人材センターアクセス
東中部センター
所管区:東灘区・灘区・中央区・兵庫区
〒651-0083 神戸市中央区浜辺通5丁目1番14号
(神戸商工貿易センタービル6階)
TEL.078-241-2700
FAX.078-241-2701
※ルート検索では、現在地の設定をご入力ください。

西部センター
所管区:長田区・須磨区・垂水区
〒653-0041 神戸市長田区久保町5丁目1番1号 209号
(アスタくにづか3番館2階)
TEL.078-621-6880
FAX.078-621-2277
※ルート検索では、現在地の設定をご入力ください。

北区センター
所管区:北区
〒651-1114 神戸市北区鈴蘭台西町1丁目22番1号
(北区文化センター北側)
TEL.078-596-3181
FAX.078-594-5125
※ルート検索では、現在地の設定をご入力ください。

西区センター
所管区:西区
〒651-2273 神戸市西区糀台5丁目6番1号
(西区文化センタービル6階)
TEL.078-993-0066
FAX.078-997-0082
※ルート検索では、現在地の設定をご入力ください。

